Yatırımlık Fırsat Gayrimenkulleri Kaçırmayın!
tapucom svg logo

tapucom svg logo

Karşıyaka Bahariye'de 3+1 Daire

Vakıftan 3 + 1 136m2

Özellikler

Tapu no:
24221
Satıcı:
Vakıftan
Oda Sayısı:
3 + 1
Metre Kare:
136m2
Ada:
25108
Parsel:
2
Tapu Tipi:
Kat Mülkiyetli
Hisse Oranı:
Tam
Isıtma Sistemi:
Kombili
Bina Yaşı:
34
Binadaki Toplam Kat Sayısı:
4
İskan Tarihi:
27.01.1995
Ruhsat Tarihi:
13.04.1991
Kullanım Durumu:
Boş
Taşınmazın Bulunduğu Kat:
2
Bağımsız Bölüm:
6

Ödeme Detayları

KDV:
% 0
Tapu Harcı:
Alıcı öder
Teminat Bedeli:
% 5
İlgilendiğiniz bu tapuyla ilgili tüm sorularınız için sizi arayalım.
Dilerseniz 0 212 963 06 43 numaralı telefondan da bize ulaşabilirsiniz

Adres

Bahariye Mh., 1856/2 Sk., Efes Apt., No: 6, Daire: 6 Karşıyaka/İZMİR

Açıklama

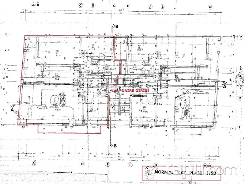
Özellikler: Konu taşınmaz 590,95 m2 yüzölçümlü arsa üzerinde, zemin kat + 4 normal kattan oluşmak üzere toplam 5 katlı yapıdır. Bina girişi vaziyet planında işaretlenmiş olup mahallinde de projesiyle uyumlu şekilde zemin kattan, güney cepheden sağlanmaktadır. 13.04.1991 tarihli, kat irtifakına esas onaylı mimari projesine göre zemin katta bina girişi ve 2 adet daire, normal katların her birinde 2 şer adet daireden oluşmak üzere tamamı daire nitelikli toplam 10 bağımsız bölüm mevcuttur . Binada asansör mevcut olmayıp, açık otopark imkanı bulunmaktadır. Konu taşınmaz site içerisinde konumlu değildir.

Konu gayrimenkul, binanın 2. normal katında, bina girişine göre sol cephede konumludur. Taşınmaz kat, kattaki konum, kullanım alanı ve mimari planlama olarak projesi ile uyumludur. Taşınmaz onaylı mimari projesine göre 1 salon, 3 oda, wc, hol, banyo ve 2 balkon hacimlerinden oluşmak üzere brüt 136 m2 alanı mevcuttur. Taşınmazın ısınması doğalgaz yakıtlı kombi ile sağlanmaktadır.

KDV dahil %2,5 oranında hizmet bedeli alınmaktadır. 

Tapu.com'dan Konut Satın Alınırken Sık Sorulan Sorular

Gayrimenkulle ilgili merak ettiğiniz tüm sorular için uzman destek ekibimizle iletişime geçebilirsiniz. Sayfa içerisinde yer alan “Sizi Arayalım” formunu doldurduğunuz takdirde çağrı merkezimiz size en kısa sürede dönüş sağlar. Dilerseniz 0850 532 82 78 nolu telefonu arayarak ekibimizle görüşme gerçekleştirebilirsiniz.

Sitemize üye olarak ilgilendiğiniz tapuları favorinize ekleyebilirsiniz. Favorilere eklediğiniz tapular hakkında tüm haberler, değişiklikler ve açık artırma tarihlerinde oluşacak gelişmeler size SMS ve e-mail yoluyla iletilir.

İlgili mülkü ziyaret etmek için “Sizi Arayalım” formunu doldurmanız gerekmektedir. Çağrı merkezimiz size en kısa sürede dönüş sağlayarak uygun tarihler için randevunuzu oluşturur.

Üye girişi yaptıktan sonra ilgilendiğiniz gayrimenkulün sayfasında yer alan “Teklif Ver” ya da “Pazarlığa Başla” butonuna tıkladığınızda teklif verme sayfasına yönlendirilirsiniz. Bu sayfada teklifinizi girin, son olarak “Teklifi Gönder” butonuna tıklayın. Verdiğiniz teklif satıcı tarafından değerlendirilerek onaylanır ya da reddedilir. Satıcının dönüşü tarafınıza bildirilir.

Tapu.com ciddi alıcılar ile satıcıları bir araya getirmek amacıyla teklif verme sürecinde “Hizmet Bedeli” ödemesi talep eder. Ödeme ekranından kredi kartı, banka kartı bilgilerinizi girerek veya EFT ile hizmet bedelinizi ödeyerek teklifinizi verebilirsiniz.

Teklif verildikten sonra, teklif tapu.com üzerinden satıcıya iletilir. Satıcı işleme onay verdikten sonra tapu.com siz ve satıcı arasında iletişimi sağlayarak işlemlerin sonuçlanmasına yardımcı olur. Bu aşamada gereken evrakların ve varsa sözleşmelerin imzalanması gerekir. Bu evraklarla birlikte tapu dairesine gidilerek tapu devir işlemleri gerçekleştirilir. Devir sürecinin her adımında tapu.com yetkilisi size yardımcı olmak üzere hazır bulunur. Satıcı teklifinizi reddederse teklif sürecinde ödediğiniz hizmet bedeli tarafınıza aide edilir. Dilerseniz aide gerçekleşene dek yeniden teklif verebilirsiniz.

Teklifiniz onayladığı takdirde ödemeyi tapu devri sırasında direkt satıcıya ödersiniz. Tapu.com hizmet bedeli dışında herhangi bir ödeme sürecine dahil olmaz.

Teklifiniz onaylanmazsa veya açık artırmayı kazanamazsanız hizmet bedeliniz iade edilir. Verilen teklif onaylandıktan sonra satın almaktan vazgeçen katılımcıya hizmet bedeli iade edilmemektedir.

Tapu.com'da yayınlanan mülklerle ilgili tüm bilgiler ekspertiz raporuna dayanmaktadır. Ekspertiz raporu, gayrimenkulün gerçek değerini belirlemek için yetkili kişi ya da kurumlar aracılığıyla hazırlanan analizdir. Ekspertiz raporu sonucunda tapu kayıtlarıyla ilgili bilgileri (şerh, ipotek, haciz, vb.), iskan durumunu, bina yaşını, metrekaresini, konumunu ve evin piyasa değerini öğrenmek mümkündür.